Örebro

Skebäcks vårdcentral

Skebäcks vårdcentral i Örebro, uppförd med vårdmoduler från Expandia, omgiven av grönska och med tillgänglig entré ramp.
  • Kund: Länsgården Fastigheter AB
  • Bruttoarea: 350 kvm
  • Modultyp: K10
  • Avtalstid: 36 månader
  • Inflyttningsår: 2019
  • Placering: Örebro
  • Verksamhet: Mödravård- och barnavårdscentral
  • Antal moduler: 14
Skebäcks vårdcentral i Örebro, uppförd med vårdmoduler från Expandia, omgiven av grönska och med tillgänglig entré ramp.

En flexibel modullösning över tid

Skebäcks vårdcentral ligger vackert beläget intill Wadköping och Skytteparken i Örebro. Redan 2014 ställdes Expandias moduler dit för att fungera som tillfällig mödravårdscentral och barnavårdscentral men 2019 behövdes modulerna flyttas eftersom marken behövdes till en tillbyggnad av den permanenta vårdcentralen.

I samband med detta moderniserades och renoverades modulerna invändigt och är nu ihopbyggda med befintlig permanent byggnad.

Exteriör av moduluppförd verksamhetslokal från Expandia med fönster och fasadpartier, omgiven av träd och grönska.

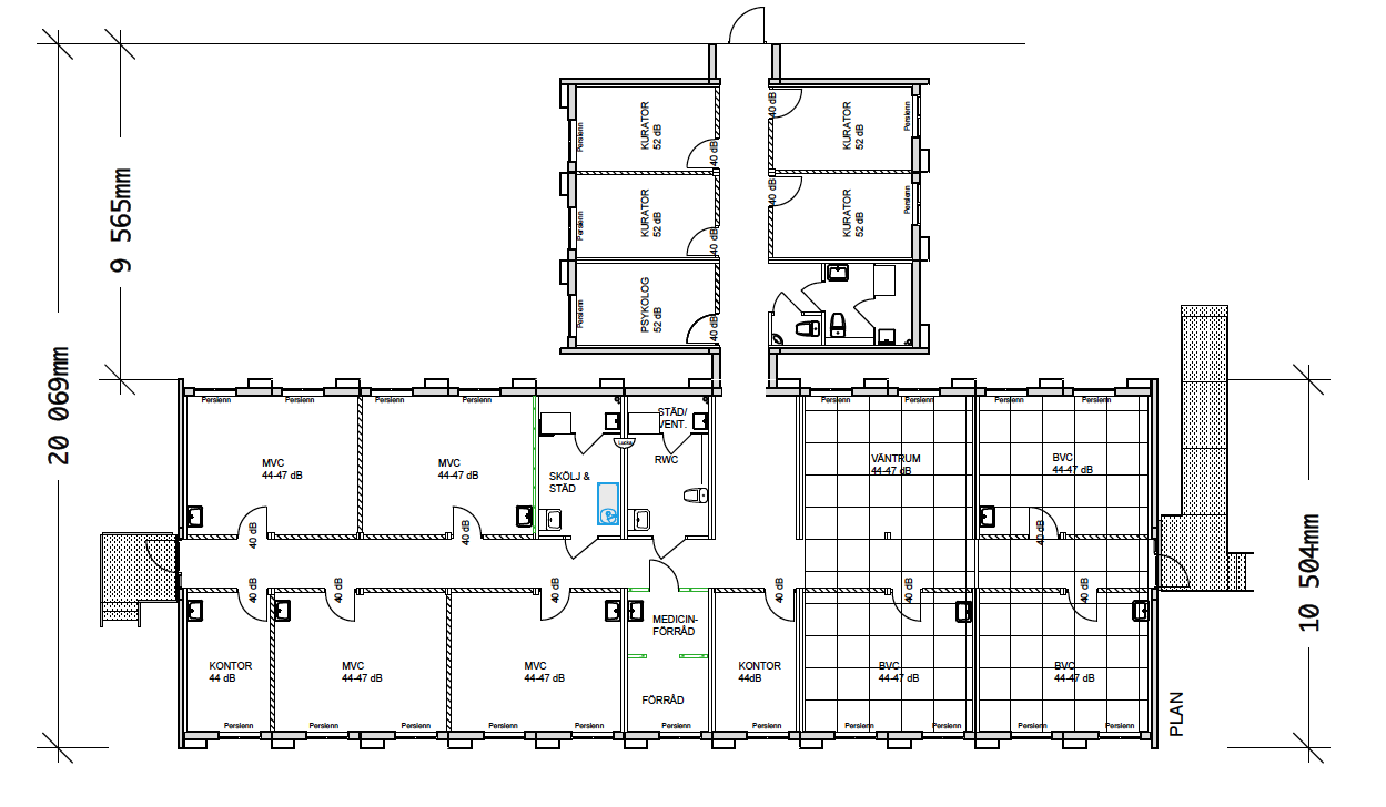
Mödravård- och barnavårdscentral

De 14 K10-modulerna fungerar idag som MVC och BVC med samtalsrum, kontor och förråd.

Skebäcks vårdcentral i Örebro, uppförd med vårdmoduler från Expandia, omgiven av grönska och med tillgänglig entré ramp.
jacob wallstedt, expandia

Ingen fråga är för liten

Vad kostar en sån här lösning, kan modulerna stå på all typ av mark och vad ingår i hyran? Vi vet att det kan dyka upp en hel del frågor när man börjar fundera på modulkontor. Därför finns våra experter tillgängliga för att svara på allt du funderar över.

Kundcase

Se liknande kundcase

Sedan vi startade för över 30 år sedan har vi levererat tusentals tillfälliga lokaler till skolor, företag och boenden över hela Sverige. Här kan du se några av de lösningar vi skapat åt våra kunder.