Skillingaryd

Skillingaryds vårdcentral

Skillingaryds vårdcentral uppförd i vårdmoduler från Expandia, med flexibel moduluppbyggnad anpassad för hälso- och sjukvårdsverksamhet
  • Kund: Region Jönköping län
  • Bruttoarea: 1178 kvm
  • Modultyp: K10
  • Avtalstid: 48 månader
  • Inflyttningsår: 2023
  • Placering: Skillingaryd
  • Verksamhet: Vårdcentral
  • Antal moduler: 49

Här är det ljust och fräscht med gott om fönster och dagsljusinfall. Det känns naturligtvis jättebra att veta att både medarbetare och vårdsökande nu vistas i lokaler som inte påverkar hälsan negativt.

Ann-Christin Roos, Verksamhetschef.
Reception på Skillingaryds vårdcentral i moderna vårdmoduler från Expandia med glaslucka och väntrumsdel

Vårdcentral i ljusa moduler

Vårdcentralen Bra Liv i Skillingaryd har haft långvariga problem med vattenläckage och mögelskador. För att lösa dessa utmaningar behövde de en snabb och effektiv lösning.

Verksamheten har nu flyttat till en vårdcentral byggd med moduler från Expandia, som de kommer att hyra under fyra år. Denna lösning möjliggör för dem att fortsätta erbjuda vårdtjänster till sina patienter utan avbrott, samtidigt som de kan arbeta på att lösa problemen på den permanenta vårdcentralen.

Behandlingsrum på Skillingaryds vårdcentral i vårdmoduler från Expandia, utrustat för undersökning och fysioterapi i ljus och funktionell vårdmiljö

Trivsam vårdcentral

– Det känns som vi har fått en helt ny vårdcentral, säger Alexandra Sandberg, distriktssköterska.

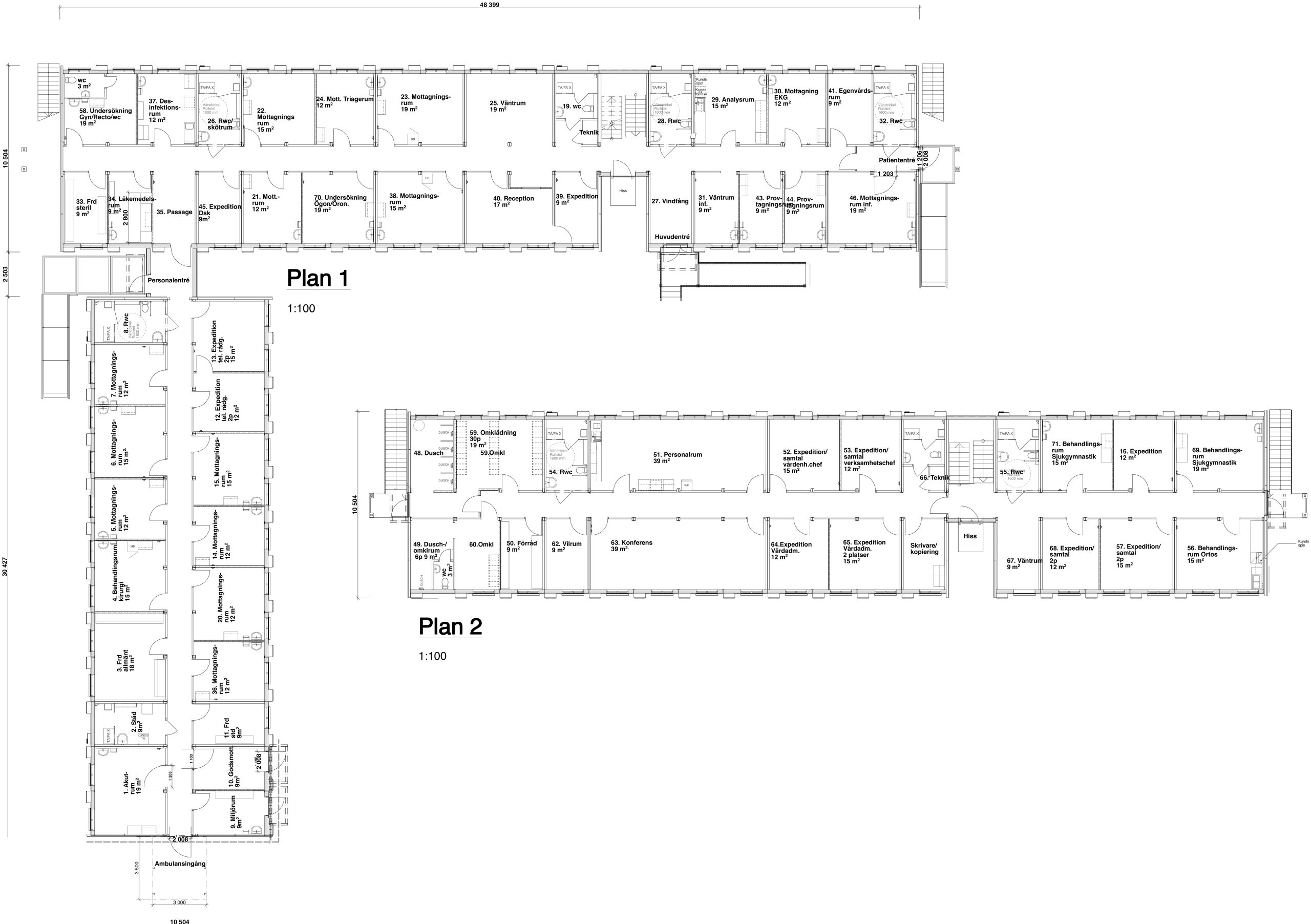
Modullösningen består idag av 49 st K10-moduler med mottagningsrum, undersökningsrum, behandlingsrum/kirurgi, akutrum, väntrum, personalrum, etc.

Anatomisk skelettmodell i behandlingsrum på Skillingaryds vårdcentral, inredd i moderna vårdmoduler från Expandia med ljusa ytor och funktionell vårdmiljö
Stefan Gertsen, expandia

Ingen fråga är för liten

Vad kostar en sån här lösning, kan modulerna stå på all typ av mark och vad ingår i hyran? Vi vet att det kan dyka upp en hel del frågor när man börjar fundera på modulkontor. Därför finns våra experter tillgängliga för att svara på allt du funderar över.

Kundcase

Se liknande kundcase

Sedan vi startade för över 30 år sedan har vi levererat tusentals tillfälliga lokaler till skolor, företag och boenden över hela Sverige. Här kan du se några av de lösningar vi skapat åt våra kunder.