Förskola – avdelning 115 m²
| Bruttoarea | 115 m² |
|---|---|
| Antal avdelningar | 1 |
| Antal moduler | 4 |
| Uppvärmning | Elradiatorer |
| Stomme | Trä |
| Fasad | Träskiva i ljusgrått/mörkgrått |
| Lagerplats | Kontakta oss för mer information |
Flexibla kontorslokaler för projektkontor, växande verksamheter och tillfälliga etableringar.
Inflyttningsklara skolmoduler med bra lärmiljöer – snabbt på plats.
Trygga förskolemoduler med moderna och inspirerande miljöer för lek och lärande.
Trivsamma boenden i form av korridorrum eller lägenheter. Snabbt etablerade när behov uppstår.
Snabba, anpassningsbara vårdmoduler för allt från vårdcentraler till omsorgsboenden.
Behöver du något utöver det vanliga? Vi bygger specialmoduler för allt från hunddagis till fängelser.
Här hittar du moduler som säljs utanför vårt standardsortiment – till ett förmånligt pris.
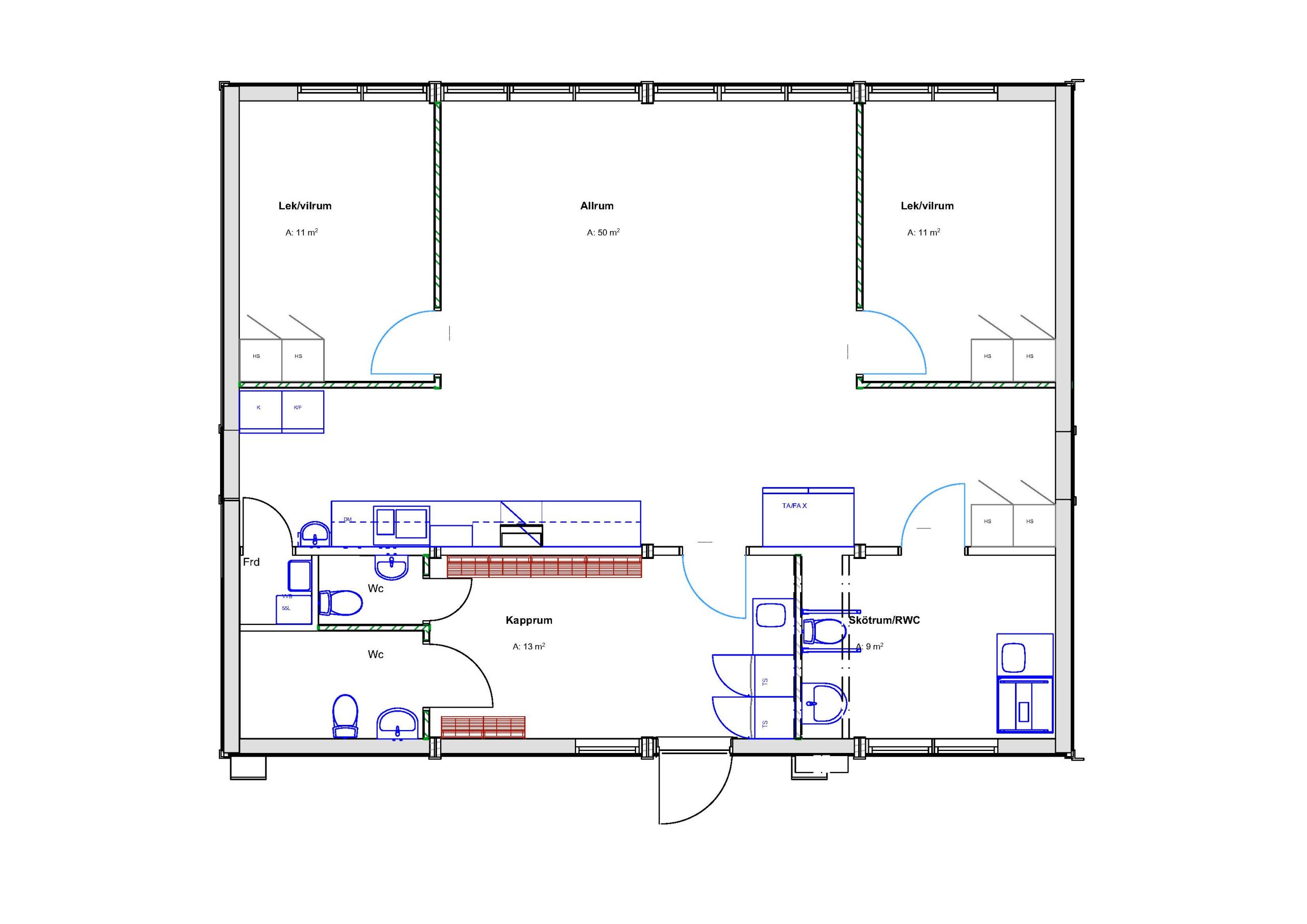
4 moduler bildar ett rymligt allrum och två mindre rum för exempelvis vilorum eller ateljé. Komplett avdelningskök ingår såväl som utrustat kapprum och toaletter. Modulerna kan användas som fristående paviljong eller anslutas till befintlig byggnad.
Vi har flera förskolemoduler på lager. Detta är ett exempel på en liten förskoleavdelning med plats upp till 20 barn.
| Bruttoarea | 115 m² |
|---|---|
| Antal avdelningar | 1 |
| Antal moduler | 4 |
| Uppvärmning | Elradiatorer |
| Stomme | Trä |
| Fasad | Träskiva i ljusgrått/mörkgrått |
| Lagerplats | Kontakta oss för mer information |
Fyll i din mejladress så kontaktar vi dig.