Landskrona

Landskrona Energi

Landskrona Energi Ljust personalrum med köksdel, vita skåp och mikro­vågsugnar, kaffemaskiner, runda bord med vita stolar samt gröna detaljer på väggar och möbler
  • Kund: Landskrona Energi
  • Bruttoarea: 950 kvm
  • Modultyp: K2000
  • Inflyttningsår: 2018
  • Placering: Landskrona
  • Verksamhet: Kontor med kök och konferensrum
  • Antal moduler: 33
  • Värmesystem: El
Landskrona Energi kontorsmoduler från Expandia med uteplats

Brist på gemensamma utrymmen

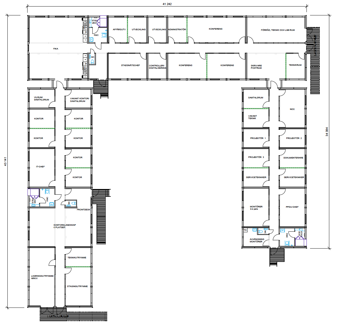
Landskrona Energi var trångbodda i sina befintliga lokaler och personal som arbetar med stadsnätsutbyggnad behövde sitta samlade och ha mer gemensamma utrymmen för möten och projektering.

Landskrona Energi Ljust personalrum med köksdel, vita skåp och mikro­vågsugnar, kaffemaskiner, runda bord med vita stolar samt gröna detaljer på väggar och möbler

U-formad enplansbyggnad

33 av Expandias moderna K2000-moduler bildar en u-formad enplansbyggnad på 950 kvm. Här finns kontorsplats för drygt 30 personer inklusive konferensrum, gemensamhetsytor, teknikrum och andra förvaringsutrymmen.

Landskrona Energi kontorsmoduler från Expandia, med tillgänglighetsramp
jacob wallstedt, expandia

Ingen fråga är för liten

Vad kostar en sån här lösning, kan modulerna stå på all typ av mark och vad ingår i hyran? Vi vet att det kan dyka upp en hel del frågor när man börjar fundera på modulkontor. Därför finns våra experter tillgängliga för att svara på allt du funderar över.

Kundcase

Se liknande kundcase

Sedan vi startade för över 30 år sedan har vi levererat tusentals tillfälliga lokaler till skolor, företag och boenden över hela Sverige. Här kan du se några av de lösningar vi skapat åt våra kunder.