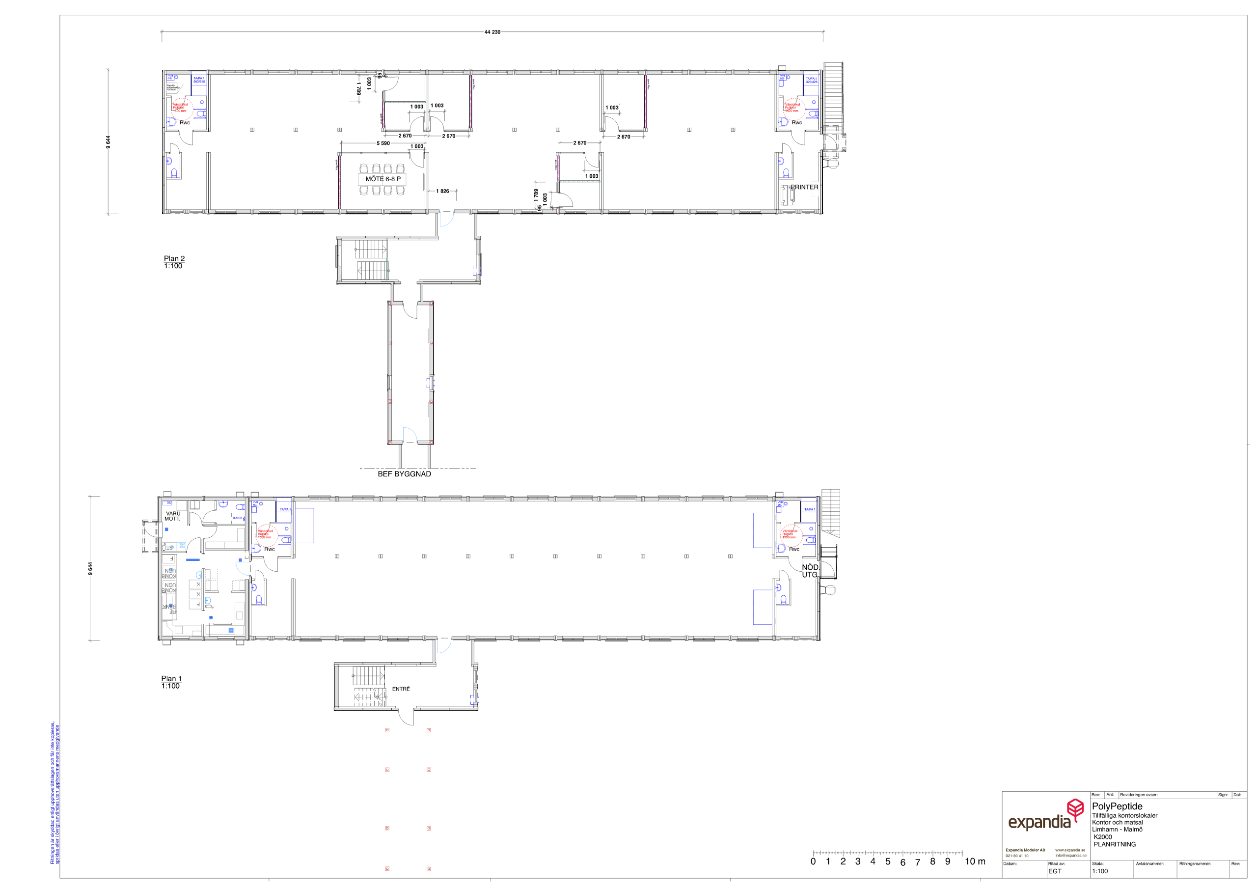
Polypeptide i Limhamn var trångbodda och behövde en snabb och trygg lösning. Expandia monterade 33 moduler som idag formar en trevlig kontorsuppställning.
Det är en tvåvåningsbyggnad med en sluss till deras befintliga byggnad från plan två. I bottenvåningen finns det matsal och kök med ca 150 sittplatser, med möjlighet att värma mat eller köpa från restaurangen som drivs av en cateringfirma. På plan två är det öppet kontorslandskap med 30 arbetsplatser och 7 konferensrum, med bra ljusinsläpp, behaglig ljudmiljö och bra luft.