Stockholm

Sveaplansskolan

Skolmoduler från Expandia vid Sveaplansskolan i Stockholm. Ljus tvåplans modulrad med entréer, ramper och spiraltrappa, placerad i grön miljö med träd och gräsyta. I bakgrunden syns ett högt stadshus som kontrasterar mot skolområdet.
  • Kund: Skolfastigheter i Stockholm AB
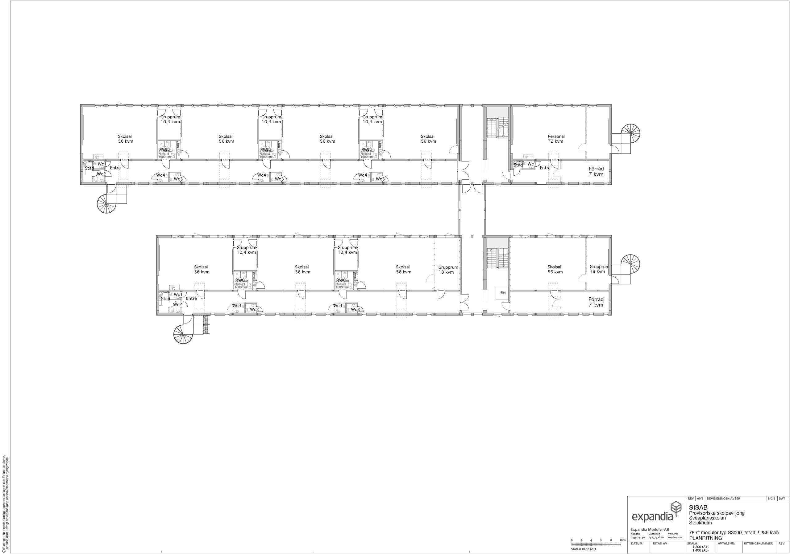
  • Bruttoarea: 2 286 kvm
  • Modultyp: S3000
  • Avtalstid: 60 månader
  • Inflyttningsår: 2019
  • Placering: Stockholm
  • Verksamhet: Skola
  • Antal moduler: 72
  • Värmesystem: El

Det är ett speciellt projekt och det krävdes lite extra, men lokalerna har allt som krävs för att barnen ska kunna undervisas där under de kommande åren.

Peter Jernberg, projektområdeschef Sisab.
Skolmoduler från Expandia vid Sveaplansskolan i Stockholm. Två vita modulvolymer i två plan står placerade på en grön skolgård med utvändiga spiraltrappor. Mellan modulerna finns en entré, och i bakgrunden syns ett höghus samt omgivande träd under en ljus och molnig himmel.

Ökning av grundskoleelever

För att möta ökningen av grundskoleelever byggdes en ny skola där Socialhögskolan, där Sveaplans gymnasium tidigare låg. Den nya skolan förväntades inte stå klar förrän till höstterminen 2022, så fram till dess hyrde Sisab, som förvaltar över 600 skolor i Stockholms kommun, paviljonger av Expandia Moduler.

 

Exteriör av Sveaplansskolan i Stockholm, uppförd med skolmoduler från Expandia. Tvåvånings vit modullösning med raka fasader, höga smala fönster och externa spiraltrappor i stål. Modulerna är placerade i en grön stadsmiljö och visar Expandias flexibla och funktionella modulkoncept för skolor.

Plats för 360 elever

– Vi har samarbetat med Expandia Moduler under många år och det har alltid fungerat bra. Att vi valde Expandia Moduler i det här projektet beror på att de är en av våra upphandlade ramavtalsleverantörer och att de kunde anpassa paviljongernas utseende efter den kulturminnesmärkta Socialhögskolan, säger Peter Jernberg, projektområdeschef Sisab.

Skolmoduler fick plats med 360 elever och bestod av 78 stycken S3000-moduler i två våningar. Den var dessutom utrustad med ett mottagningskök och en rymlig matsal.

Montering av skolmoduler från Expandia vid Sveaplansskolan i Stockholm. En mobilkran lyfter en vit modul på plats ovanpå redan installerade moduler i ett vinterlandskap. På marken syns förberedda fundament och skyddsmaterial, medan en montör arbetar uppe på modulerna. I bakgrunden syns stadsmiljö med höghus och träd under klar blå himmel.
jacob wallstedt, expandia

Ingen fråga är för liten

Vad kostar en sån här lösning, kan modulerna stå på all typ av mark och vad ingår i hyran? Vi vet att det kan dyka upp en hel del frågor när man börjar fundera på modulkontor. Därför finns våra experter tillgängliga för att svara på allt du funderar över.

Kundcase

Se liknande kundcase

Sedan vi startade för över 30 år sedan har vi levererat tusentals tillfälliga lokaler till skolor, företag och boenden över hela Sverige. Här kan du se några av de lösningar vi skapat åt våra kunder.