Södertälje

Oxelgrenshagens fsk

Interiör Expandias moduler, Oxelgrenshagens förskola i södertälje, leksaker
  • Kund: Södertälje kommun
  • Bruttoarea: 966 kvm
  • Modultyp: S3000
  • Avtalstid: 60 månader
  • Inflyttningsår: 2020
  • Placering: Södertälje
  • Verksamhet: Förskola
  • Antal moduler: 34
Expandia moduler fasad Oxelgrenshagens förskola i södertälje

Smidig och snabb upphandlingsprocess

Området Brunnsäng-Grusåsen hade brist på förskoleplatser vilket ledde till att Södertälje kommun tog kontakt med SKR (numera Adda) och handlade upp en förskola.

Addas ramavtal ”Hyresmoduler 2018” omfattar tillfälliga moduler för förskola, skola, kontor, bostäder, dusch, omklädningsrum, vårdboende och äldreboende. I detta avtal är annonseringsprocess och urvalskriterier redan gjorda vilket innebär att kommunen kan fokusera på behov och leveranstid och gör att upphandlingsprocessen går smidigare och snabbare.

Expandia moduler Oxelgrenshagens förskola i södertälje, korridor

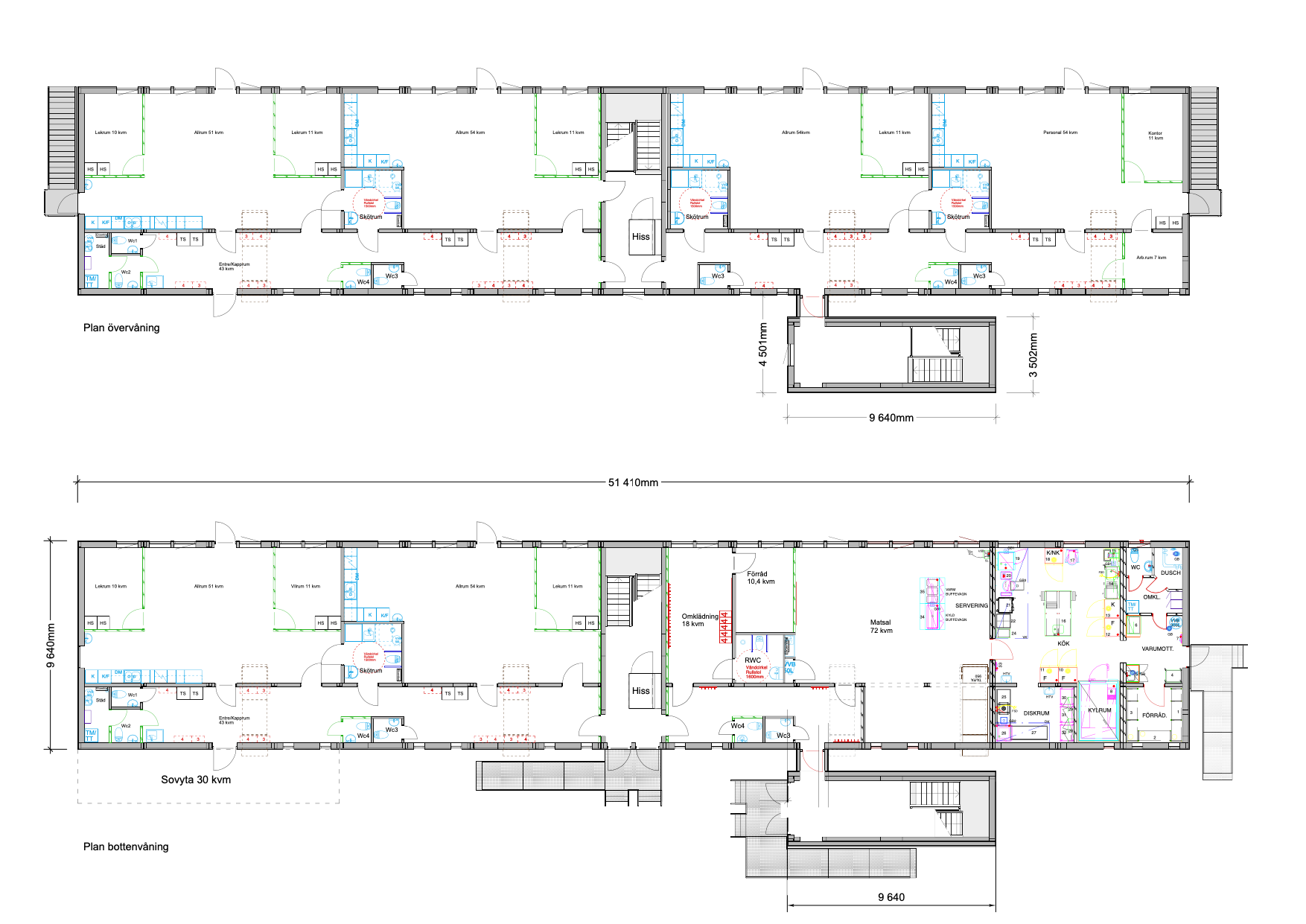
Två plan modullösning med natursköna områden

Expandias modulsystem S3000 för förskolor, var det prismässigt bästa anbudet och i början av 2020 kunde verksamheten flytta in.

Oxelgrenshagens förskola är i två plan och härligt omgiven av natursköna områden. Modullösningen har 5 avdelningar samt personalrum och kontor. På nedre plan finns dessutom matsal och tillagningskök.

Expandia moduler fasad Oxelgrenshagens förskola i södertälje
jacob wallstedt, expandia

Ingen fråga är för liten

Vad kostar en sån här lösning, kan modulerna stå på all typ av mark och vad ingår i hyran? Vi vet att det kan dyka upp en hel del frågor när man börjar fundera på modulkontor. Därför finns våra experter tillgängliga för att svara på allt du funderar över.

Kundcase

Se liknande kundcase

Sedan vi startade för över 30 år sedan har vi levererat tusentals tillfälliga lokaler till skolor, företag och boenden över hela Sverige. Här kan du se några av de lösningar vi skapat åt våra kunder.