Västra Frölunda
Smaragdgatans fsk
43 flexibla moduler
Smart lösning
Flexibla kontorslokaler för projektkontor, växande verksamheter och tillfälliga etableringar.
Inflyttningsklara skolmoduler med bra lärmiljöer – snabbt på plats.
Trygga förskolemoduler med moderna och inspirerande miljöer för lek och lärande.
Trivsamma boenden i form av korridorrum eller lägenheter. Snabbt etablerade när behov uppstår.
Snabba, anpassningsbara vårdmoduler för allt från vårdcentraler till omsorgsboenden.
Behöver du något utöver det vanliga? Vi bygger specialmoduler för allt från hunddagis till fängelser.
Här hittar du moduler som säljs utanför vårt standardsortiment – till ett förmånligt pris.
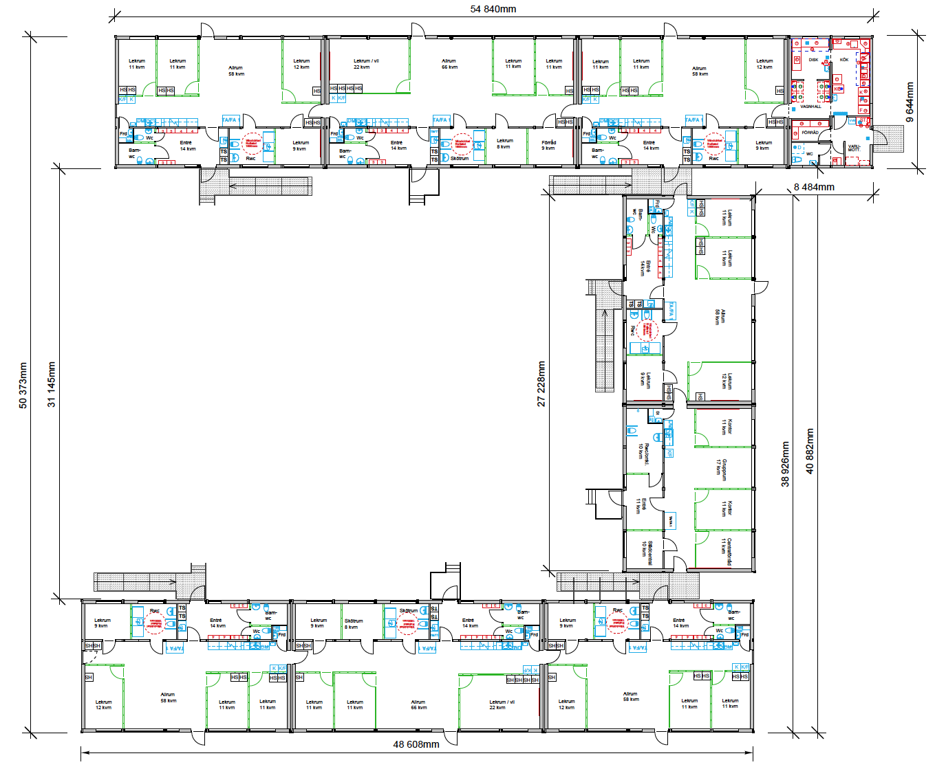
I Västra Frölunda ligger Smaragdgatans förskola. En förskola som består av 8 avdelningar och mottagningskök, totalt 43 st. S2000-moduler.
Byggnaden består av 3 st. huskroppar i ett plan och står i U-formation med platsbyggda slussar mellan varje byggnad. Varje avdelning har egen entré mot innergården men man kan även gå emellan avdelningarna invändigt.
Vad kostar en sån här lösning, kan modulerna stå på all typ av mark och vad ingår i hyran? Vi vet att det kan dyka upp en hel del frågor när man börjar fundera på modulkontor. Därför finns våra experter tillgängliga för att svara på allt du funderar över.
Kundcase
Sedan vi startade för över 30 år sedan har vi levererat tusentals tillfälliga lokaler till skolor, företag och boenden över hela Sverige. Här kan du se några av de lösningar vi skapat åt våra kunder.