Karlstad

Skanska

Två personer i varselvästar och röda skyddshjälmar samtalar i ett utrymme för besöksutrustning i Skanskas projektkontor i Karlstad. Rummet har hyllor med märkta skyddshjälmar och ett fönster som släpper in dagsljus, och är placerat i kontorsmoduler från Expandia.
  • Kund: Skanska
  • Bruttoarea: 1642 kvm
  • Modultyp: K2000
  • Avtalstid: 60 månader
  • Inflyttningsår: 2024
  • Placering: Karlstad
  • Verksamhet: Projektkontor
  • Antal moduler: 57

Vi är stolta över att ha kunnat leverera och montera modulerna på bara några veckor. Det gjorde att Skanska snabbt kunde flytta in i sitt nya projektkontor som de ska hyra under om- och nybyggnationen av Centralsjukhuset i Karlstad.

Jacob Wallstedt, kundansvarig på Expandia.
Personer i varselvästar och med skyddshjälmar i handen på väg ut från kontorsmoduler från Expandia vid Skanskas projektkontor i Karlstad. De samtalar medan de rör sig utomhus mot arbetsområdet, med modulerna i bakgrunden.

Framtidens vård i Värmland

Skanska hyr projektkontor från Expandia under om- och nybyggnationen av Centralsjukhuset i Karlstad. Nya CSK skapas för framtidens vård i Värmland. Det är ett partneringsamverkansprojekt mellan Region Värmland och Skanska.

Utöver Skanskas projektkontor har Expandia även levererat två modulbyggnader till Centralsjukhuset: ett kontor och en kirurgmottagning.

 

Person i Skanskas projektkontor i Karlstad som tar fram en röd skyddshjälm ur ett ställ. Hjälmarna är prydligt uppställda på hyllor i ett utrymme i kontorsmoduler från Expandia, avsett för besökare och arbetsmiljösäkerhet.

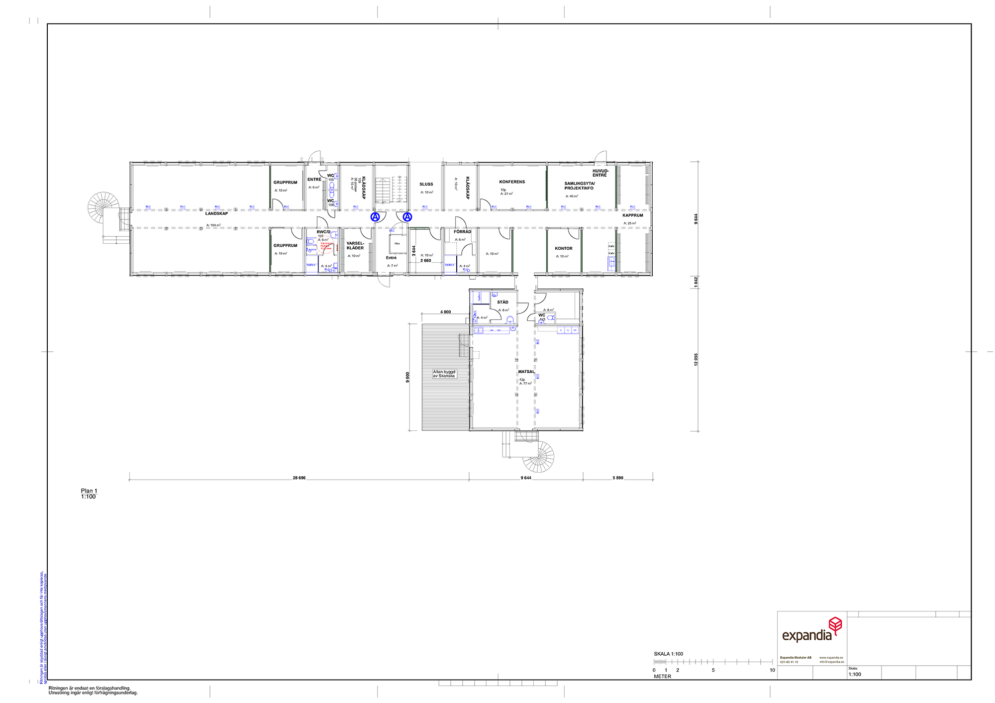
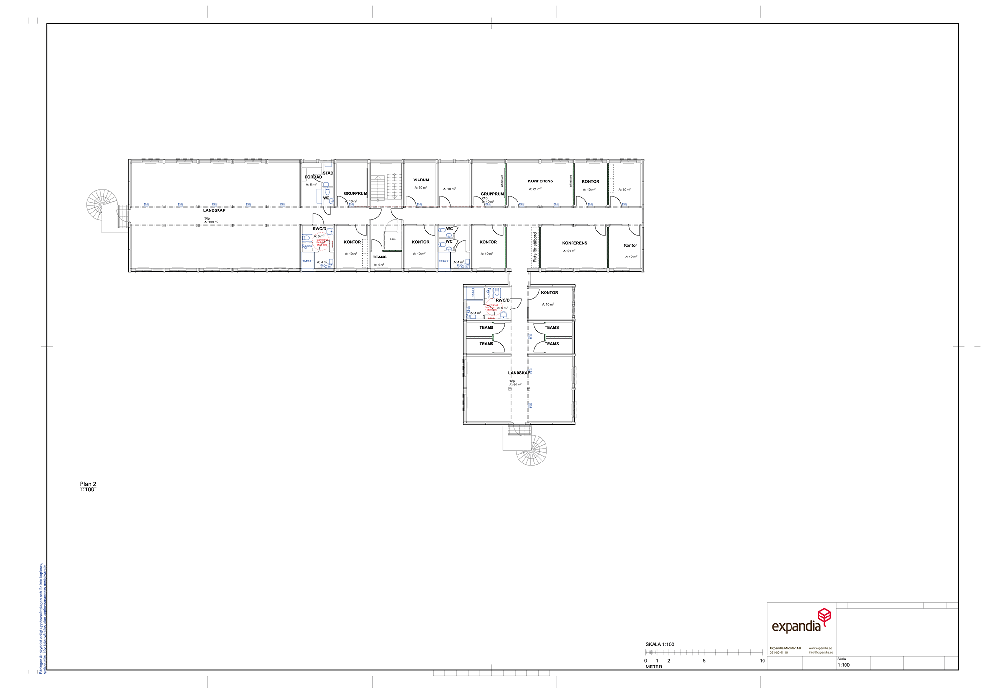
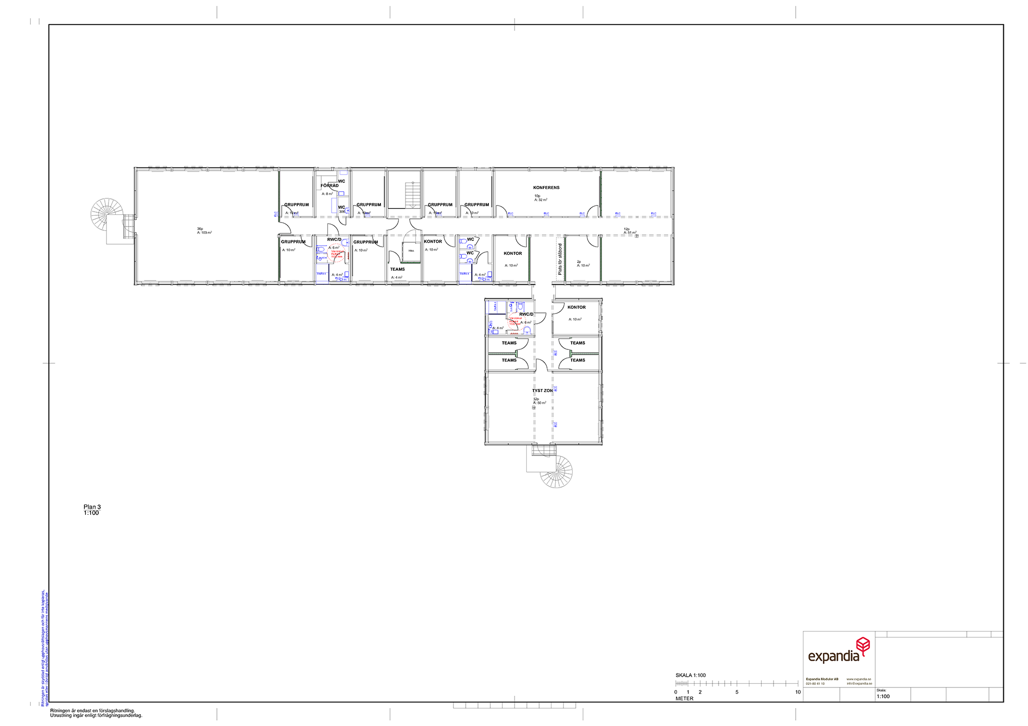
Praktiska lokaler

Med 57 moduler fördelade på tre våningar finns gott om utrymme för både fokus och samverkan. Lokalerna rymmer öppna kontorslandskap, mindre kontorsrum, flera konferensrum och grupprum för effektiva möten, en stor matsal och generösa pausytor som skapar plats för avkoppling och sociala stunder.

Det finns även omklädningsytor med gott om plats för varselkläder, hjälmar och varselskor.

Möte i konferensrum i kontorsmoduler från Expandia i Skanskas projektkontor i Karlstad. Flera personer sitter runt ett långt bord i samtal och arbete, med datorer och anteckningar framme. Rummet är ljust med stora fönster som släpper in dagsljus.

Smarta lösningar

Lokalerna är ljusa, trivsamma och välplanerade som ger en modern och bekväm arbetsmiljö.

Rummen är utrustade med smarta lösningar som gör vardagen enkel, samtidigt som glaspartier och öppna ytor bidrar till en luftig känsla. Materialval och inredning är genomtänkta för att skapa en tyst och behaglig miljö.

Fyra personer i varselvästar står utanför kontorsmoduler från Expandia vid Skanskas projektkontor i Karlstad. De håller röda skyddshjälmar och samtalar framför modulfasaden med fönster, i en miljö som visar övergången mellan kontor och byggarbetsplats.
jacob wallstedt, expandia

Ingen fråga är för liten

Vad kostar en sån här lösning, kan modulerna stå på all typ av mark och vad ingår i hyran? Vi vet att det kan dyka upp en hel del frågor när man börjar fundera på modulkontor. Därför finns våra experter tillgängliga för att svara på allt du funderar över.

Kundcase

Se liknande kundcase

Sedan vi startade för över 30 år sedan har vi levererat tusentals tillfälliga lokaler till skolor, företag och boenden över hela Sverige. Här kan du se några av de lösningar vi skapat åt våra kunder.